ドメイン国分寺

「国分寺」駅徒歩7分のオーナーチェンジ物件 月額12万円で現在賃貸中 平成19年建築の資産運用マンション
物件価格3,480万円
月々支払 円
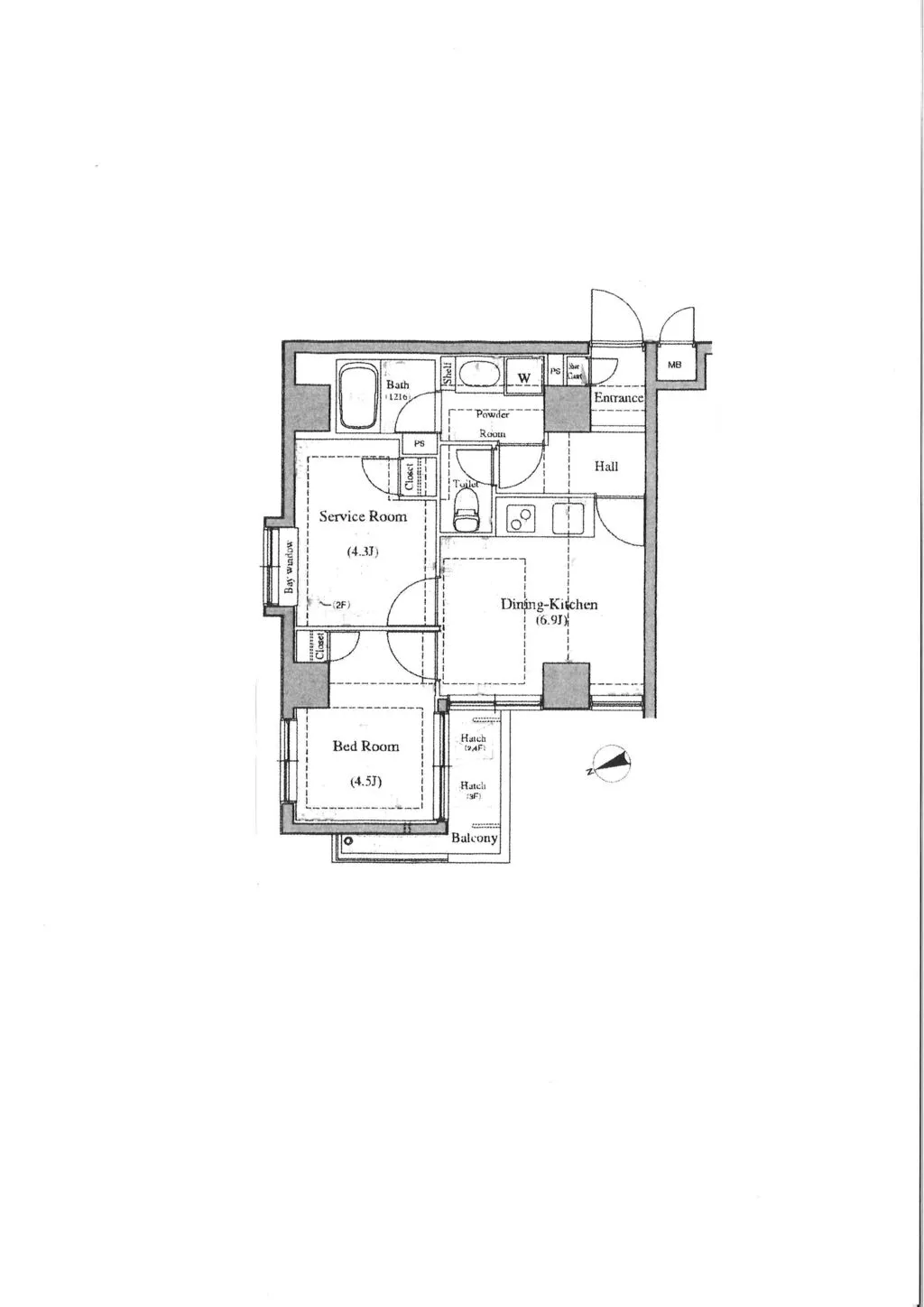
間取り図

物件写真 
交通機関
JR中央線「国分寺」駅徒歩7分
詳細情報
物件名
ドメイン国分寺
物件種類
中古マンション
所在地
国分寺市本多2-16-20
最寄り駅
JR中央線「国分寺」駅徒歩7分
価格
3,480万円
間取り
2DK
専有面積
39.82㎡
その他面積
バルコニー面積:3.35㎡
向き
西
用途地域
商業地域
建物構造
鉄筋コンクリート造(RC)
築年月
2007年3月
総戸数
23戸
階建
地下1階付7階建
施工会社
株式会社三浦組
管理会社
株式会社メイプルリビングサービス
管理費
12,400円/月額
修繕積立金
6,040円/月額
現況
賃貸中
引渡日
即日
敷地権利
所有権
駐車場
無
共用施設
特になし
リフォーム
ペット
可
その他
テレビモニター付オートロックシステム 宅配ロッカー
ちらし

