メゾンサンクレール 501号室

「両国」駅徒歩12分 近隣にはスーパーやコンビニ等生活利便施設が充実 月内成約につき全室エアコン設置 うれしい家具付きマンション
物件価格4,490万円
月々支払 116,789円 
自己資金10万円、借入期間35年、金利0.525%の場合、
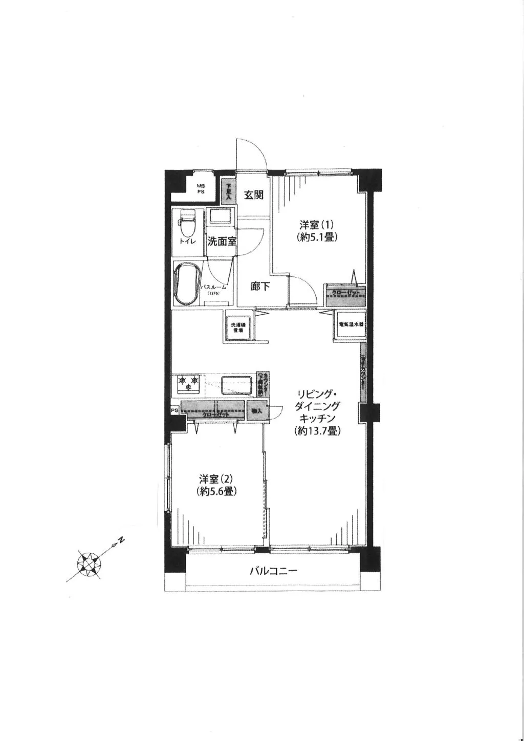
間取り図 

物件写真  
  
 
交通機関
大江戸線「両国」駅徒歩12分 浅草線「本所吾妻橋」駅徒歩11分
詳細情報
物件名
メゾンサンクレール 501号室
物件種類
中古マンション
所在地
墨田区石原3-34-10
最寄り駅
大江戸線「両国」駅徒歩12分 浅草線「本所吾妻橋」駅徒歩11分
価格
4,490万円
間取り
2LDK
専有面積
54.00㎡
その他面積
バルコニー面積:5.40㎡ 
向き
南東
用途地域
準工業地域
建物構造
鉄筋コンクリート造(RC)
築年月
1980年10月
総戸数
30戸
階建
7階建5階部分
施工会社
佐藤工業株式会社
管理会社
日本ハウズイング株式会社
管理費
13,500円/月額
修繕積立金
8,480円/月額
現況
空室
引渡日
即日
敷地権利
所有権
駐車場
空無(25,000円/月額)  
共用施設
特になし
リフォーム
リノベーション済み
ペット
観賞用魚類、小鳥等の小動物以外飼育禁止
その他
食洗器付システムキッチン 玄関に人感センサー設置 家具付き     
ちらし

