エバーグリーンパレス板橋 503号室

「蓮根」駅徒歩10分 南西向き角住戸5階部分につき日当たり良好 安心のオートロック付きマンション
物件価格3,998万円
月々支払 104,015円 
自己資金8万円、借入期間35年、金利0.525%の場合、
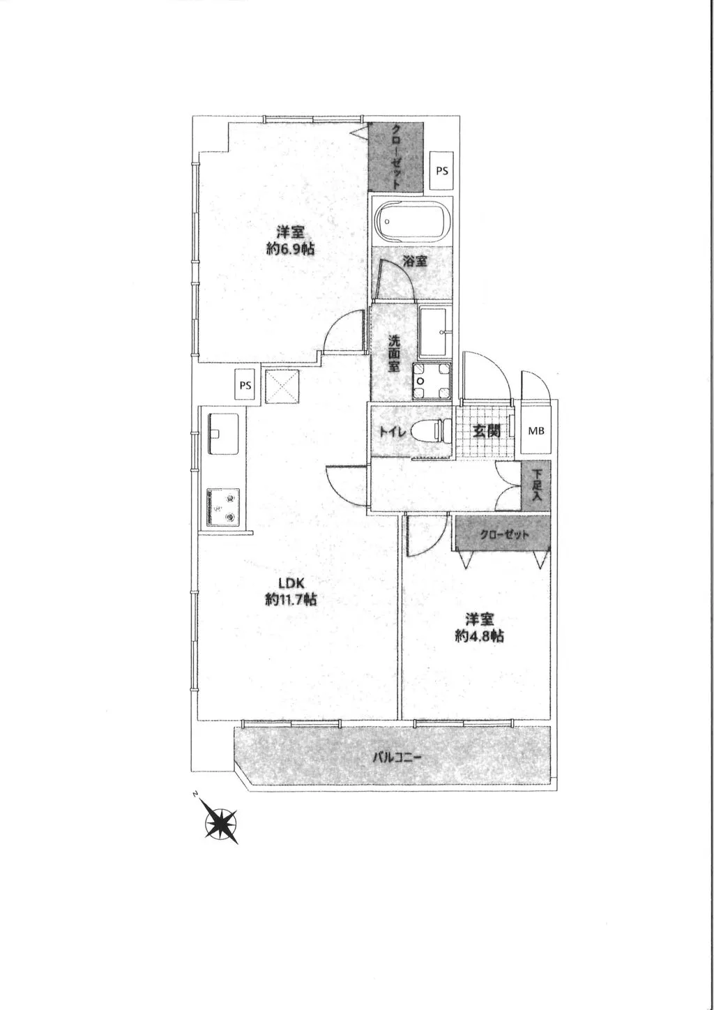
間取り図 

物件写真  
  
 
交通機関
三田線「蓮根」駅徒歩10分 三田線「志村三丁目」駅徒歩13分 JR埼京線「浮間舟渡」駅徒歩15分
詳細情報
物件名
エバーグリーンパレス板橋 503号室
物件種類
中古マンション
所在地
板橋区東坂下2-10-6
最寄り駅
三田線「蓮根」駅徒歩10分 三田線「志村三丁目」駅徒歩13分 JR埼京線「浮間舟渡」駅徒歩15分
価格
3,998万円
間取り
2LDK
専有面積
53.09㎡
その他面積
バルコニー面積:6.49㎡ 
向き
南西
用途地域
近隣商業地域
建物構造
鉄筋コンクリート造(RC)
築年月
1997年2月
総戸数
24戸
階建
7階建5階部分
施工会社
株式会社本州クリエイト建設
管理会社
グローブシップ株式会社
管理費
13,200円/月額
修繕積立金
12,960円/月額
現況
空室
引渡日
即日
敷地権利
所有権
駐車場
有(20,000円/月額)  
共用施設
特になし
リフォーム
リノベーション済み
ペット
不可
その他
食洗器付システムキッチン エアコン2台設置 宅配ボックス    
ちらし

